header-logo2.png

مجمع تجاري للإيجار في صامطه

التحلية, 86387, صامطه, منطقة جازان

80k /سنة

Active

منذ شهرين

الوصف

مجمع تجاري للإيجار في صامطه المشروع يقع على طريق الملك سلمان بن عبد العزيز يتميز بقربه من مدينة اسكان الملك عبد الله، وأحياء سكنية قائمة كما يتيح الموقع وصولاً سهلاً عبر محاور طرق رئيسية مما يوفر حر

كة مرور نشطة وفرص جذب عالية للمستثمرين والعملاء. محلات تجارية بواجهات زجاجية واضحة مناسب للأنشطة التجارية والخدمية مواقف سيارات أمامية مباشرة بنية تحتية متكاملة ايجار المعرض الواحد 40 الف سنويا

تفاصيل العقار

رقم المرجع :
75808207
السعر :
80k
حجم العقار :
7983 م²
غرف النوم :
0
الحمامات :
1
موقف السيارة :
0

المميزات

معلومات ترخيص الإعلان

الموظف المسؤول عن الإعلان فهد حميد عبدالكريم الظاهري
رقم جوال مسؤول الإعلان 0542277022
رقم رخصة فال 1200004075
رقم ترخيص الإعلان 7200822986
تاريخ اصدار الإعلان 04/01/2026
تاريخ انتهاء الترخيص 19/08/2026

العنوان التحلية, 86387, صامطه, منطقة جازان

موقع العقار حسب الصك منطقة جازان &

نأمل مطابقة الموقع أدناه مع الموقع المذكور في وصف عنوان العقار حسب الصك

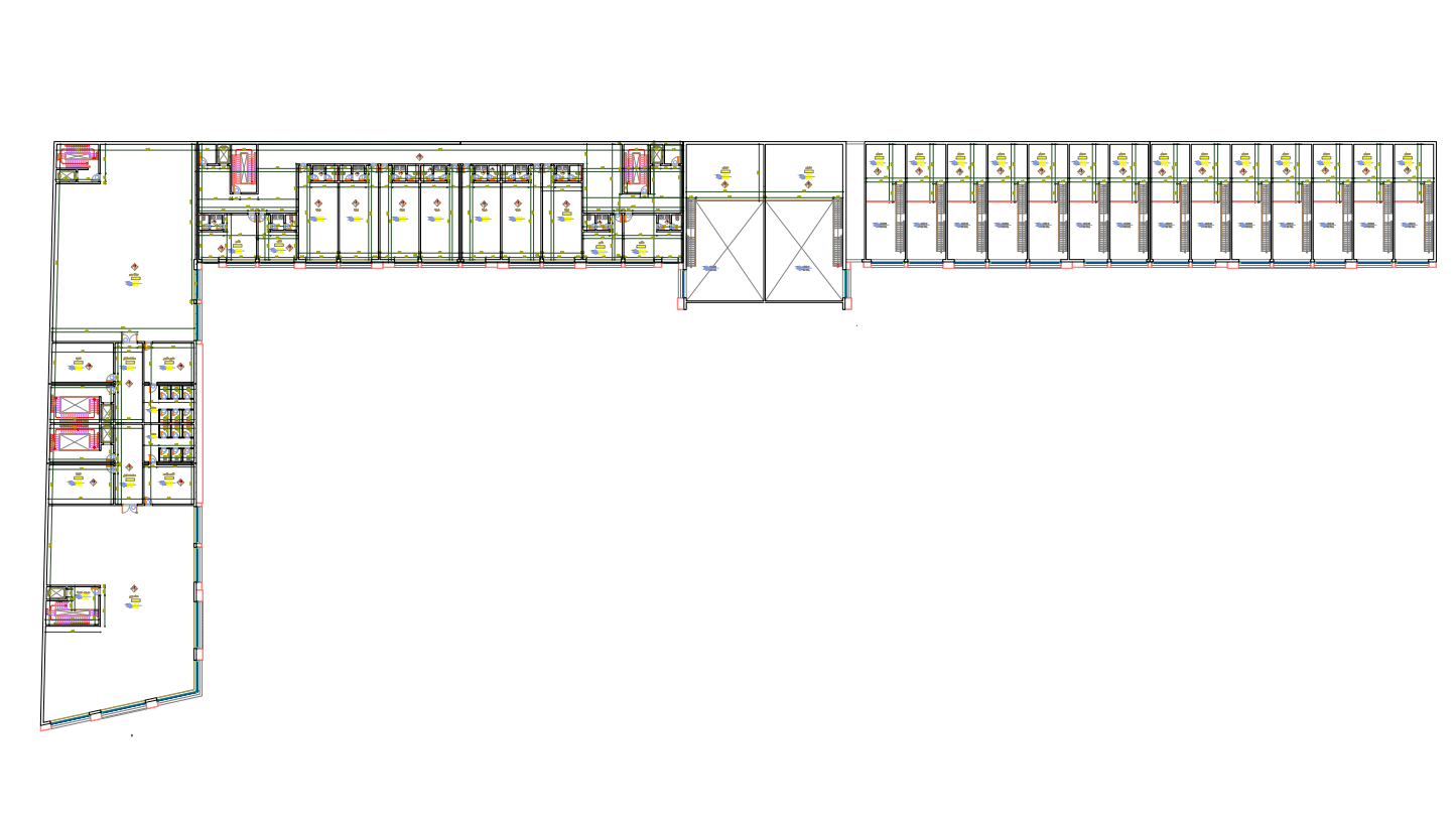
مخطط الطوابق

floor_plan.png

home.Plan description.

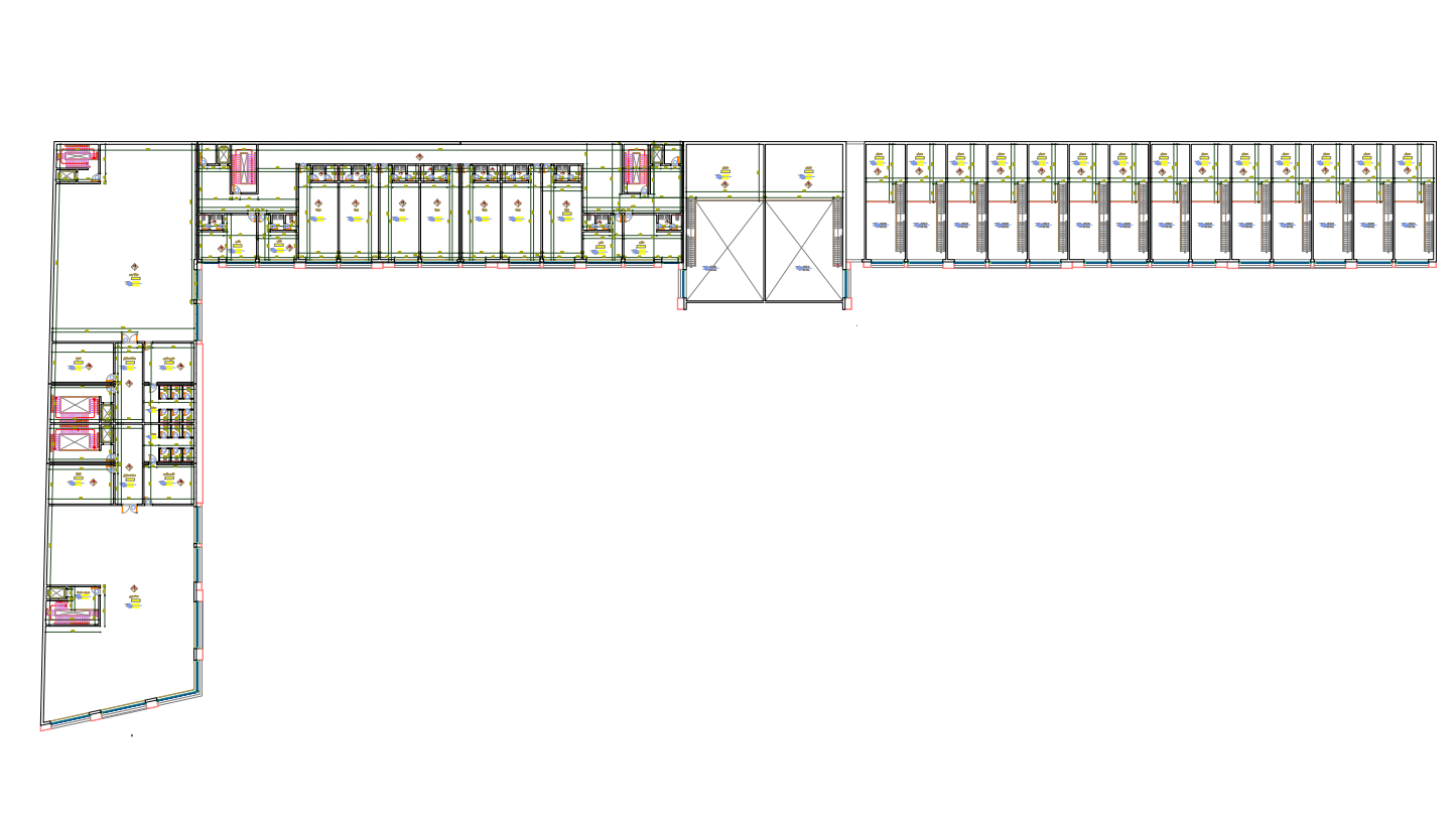
floor_plan.png

home.Plan description.

الأماكن القريبة

التعليم

مدارس

كليات

جامعات

مساجد

الصحة والطب

مستشفيات

صيدليات

المواصلات

تاكسي

محطة قطار

محطة باص

  • 0 التقييمات
  • ( 0.0 out of 5 )

اضف تقييمك

  • المراجعات والتقييمات

التقييمات